擋土墻鋼模具
品牌:麗城
產地:浙江嘉興
價格:請咨詢廠家
尺寸:可定制
材質:鋼
工藝:電焊切割
顏色:深藍色
配件:螺絲螺帽拉簧等
適用地點:國家高速鐵路
主要功能:國家高速高鐵鐵路等擋土墻、擋渣塊預制
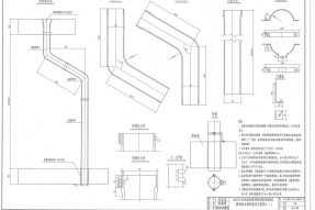
按照客戶圖紙設計設計加工制造而成的擋土墻鋼模具,整體深藍色防銹涂裝,尺寸大小可定制生產滿足客戶所需。
擋土墻鋼模具主要用來生產制作水泥混凝土擋土墻或擋渣塊,應用于國家鐵路、公路、橋梁等2邊水泥基建設,起到擋泥擋水,防止土渣積水破壞原設計工程結構。
麗城品牌擋土墻鋼模具作為一件大型的水泥構件模具,主要以鋼鐵為原料,以切割電焊為主要生產制造工藝,主要特點結構牢固,大大加大了水泥澆筑脫模次數,在針對擋土墻等大件水泥制品施工時,起到非常顯著的作用,當然缺點就是單個成本造價相對來講比較高。
在實際類似工程施工中,中小型水泥擋渣塊、擋土墻等基本使用塑料模具來生產制造。一般需要用到塑料擋土墻模具的用量都很大,主要采用的是PP聚丙烯材質,成本低,施工易,效率高,非常適合大型工程大量生產使用。
所以在實際大型工程建設中,按照具體施工實際需求可選擇對應的擋土墻鋼模具或擋渣塊塑料模具,避免造成額外成本浪費。
請廣大客戶注意:
由于本公司各規格尺寸已有塑料模具數量已達3000種之多,所以如果您沒有在網站中找到合適的產品,可以查看麗臣塑業的電子畫冊,主要分為高鐵和市政專用!如果您希望以最短的時間內找到您想要的產品,請撥打麗臣熱線:0573-82606007
麗臣塑業主營產品:現澆塑料模板,六角護坡模具、高鐵水泥護欄模具、溝蓋板模具、路沿石模具、彩磚模具、井蓋模具等一系列水泥制品塑料、鋼模具及配套的機械設備配件等,如條紋磚條紋機、脫模機、高鐵護欄離心機、加料機等。


上一篇: 麗城品牌市政專用條紋磚二工位磨光條紋機
下一篇: 高鐵水泥遮板鋼模具




















